成都日立中央空调_成都地暖暖气片_成都暖通安装公司
网站首页
产品中心
全部
地暖暖气
中央空调
三菱电机中央空调
日立中央空调
新风系统
净水系统
施工案例
全部
地暖暖气
中央空调
新风系统
净水系统
工程案例
舒适课堂
全部
地暖暖气
中央空调
新风系统
净水系统
关于鸿杰
公司特点
联系我们
荣誉资质
优惠活动
预约量房
网上报修
网上报修
<
Previous
>
Next
你的位置
网站首页
施工案例
地暖暖气
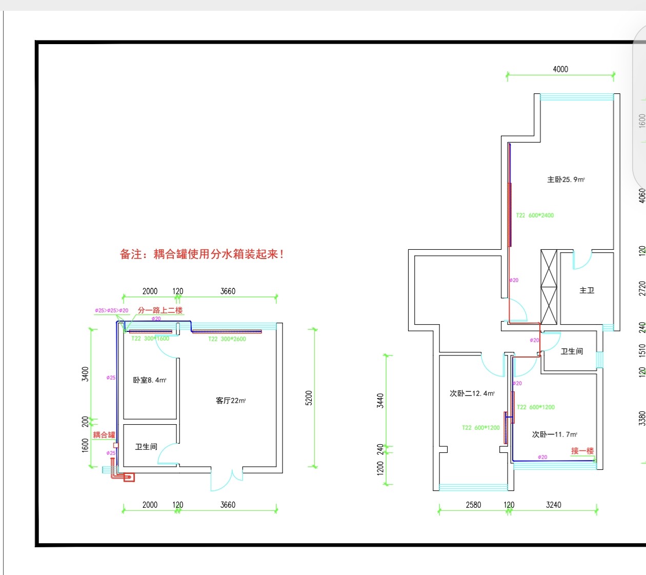
【水云花都北区10-1-x】威能明装暖气片
2025-10-14
鸿杰舒适家
水云花都北区德国威能明装暖气片------威能classic壁挂炉+五组暖气片,二次系统
近期案例
【保利北新学府7-1-***】日立家用中央空调多联机安装
【正好花园31-***】德国威能明装暖气片安装施工
【招商未来公园城6-2-1***】德国威能地暖安装施工案例
【招商未来公园城1-1-***】德国威能地暖安装施工案例
【麓湖生态城汀院4-1-2***】德国威能地暖安装施工案例
【招商未来公园城2-2-***】德国威能地暖安装施工案例
【招商未来公园城1-1-1***】德国威能地暖安装施工案例
【蓝润·棠湖春天17-2-1***】日立家用中央空调风管机安装
【山河玖璋2-2***】日立家用中央空调多联机安装
【招商未来公园城3-2-***】德国威能地暖安装施工案例
【招商未来公园城6-1-1***】德国威能地暖安装施工案例
【招商未来公园城3-1-***】德国威能地暖安装施工案例
【招商未来公园城6-2-1***】日立家用中央空调风管机安装
【国一澳乡二期18-***】德国威能明装暖气片安装施工
【明信天府壹号24-3-***】德国威能地暖安装施工案例
【招商未来公园城5-1-***】日立家用中央空调多联机安装
【招商未来公园城6-2-1***】德国威能地暖安装施工案例
【招商未来公园城5-2-***】德国威能地暖安装施工案例
【春华苑3-***】德国威能地暖安装施工案例
【招商未来公园城3-1-***】德国威能地暖安装施工案例
【绿地紫瑞里2-6-***】德国威能暗装暖气片安装施工
【天府上城C区2-1-***】德国威能地暖安装施工案例